Szuperabrazív, hengeres fazékkorongjainkat nagy méretű munkadarabok nagyoló és simító gépi megmunkálására, szerszámok és kések élezésére ajánljuk. A széles szemcse és kötőanyag választékunknak köszönhetően szerszámainkat egy-egy pontosan meghatározott feladatra optimalizáltan készítjük.
Elérhető alaptestek: kerámia, alumínium, acél, karbon
Elérhető geometriák: 6A2, 6A2DVU, 6A2G, 6A2-TR, 6A9, 6C2, 6V9
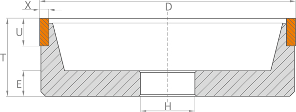
6A2 alak-
Hengeres fazék alakú szuperabrazív korong
DxWxXxH

| Méretek | Kötés típusa | |||||||||
| D | W | X | H | T1 | E | Bakelit | Kerámia | Fém | Hibrid | Galván |
| 30 | 3/5 | 2/3 | * | 18 | 8 | • | • | |||
| 40 | 3/5 | 2/3 | * | 20 | 8 | • | • | |||
| 45 | 3/4 | 2/3 | * | 20 | 8 | • | • | |||
| 50 | 3/4/5/10 | 2/3/4 | * | 20 | 10 | • | • | |||
| 55 | 10 | 2/3/4 | * | 20 | 10 | • | • | |||
| 60 | 15 | 40 | * | * | * | • | • | |||
| 63 | 3/5/10 | 2/3/4 | * | 20 | 10 | • | • | |||
| 75 | 3/4/5/6/8/10/15 | 2/3/4/5 | * | 20 | 10 | • | • | |||
| 75 | 15 | 40 | * | * | * | • | • | |||
| 90 | 3/4/5/6/8/10 | 2/3/4/5 | * | 22 | 10 | • | • | |||
| 100 | 3/4/5/6/8/10/12,5/15/20 | 2/3/4/5 | * | 22 | 10 | • | • | |||
| 100 | 6/8/10/12,5/15 | 4-6 | 25 | 22 | 10 | • | ||||
| 100 | 6/8/10/12,5/15/20 | 4-10 | * | 22 | 10 | • | ||||
| 115 | 15 | 50 | * | * | * | • | • | |||
| 125 | 3/4/5/6/8/10/12,5/15/20 | 2/3/4/5/6 | * | 22 | 10 | • | • | |||
| 125 | 6/8/10/12,5/15 | 4-6 | 25 | 22 | 10 | • | ||||
| 125 | 6/8/10/12,5/15/20 | 4-10 | * | 22 | 10 | • | ||||
| 150 | 3/4/5/6/8/10/12,5/15/20/25 | 2/3/4/5/6 | * | 22 | 10 | • | • | |||
| 150 | 6/8/10/12,5/15 | 4-6 | 25/40 | 22 | 10 | • | ||||
| 150 | 6/8/10/12,5/15/20/25 | 4-10 | * | 22 | 10 | • | ||||
| 175 | 3/4/5/6/8/10/12,5/15/20/25 | 2/3/4/5/6 | * | 25 | 13 | • | • | |||
| 175 | 6/8/10/12,5/15 | 4-6 | 25/40 | 25 | 13 | • | ||||
| 175 | 6/8/10/12,5/15/20/25 | 4-10 | * | 25 | 13 | • | ||||
| 200 | 4/5/6/8/10/12/15/20/25 | 2/3/4/5/6 | * | 25 | 13 | • | • | |||
| 200 | 6/8/10/12/15 | 4-6 | 25/40 | 25 | 13 | • | ||||
| 200 | 6/8/10/12/15/20/25 | 4-10 | * | 25 | 13 | • | ||||
| 220 | 4/10/15/20 | 2/3/4/5/6 | * | 25 | 13 | • | • | |||
| 220 | 10/15/20 | 6-10 | * | 25 | 13 | • | ||||
| 250 | 5/6/8/10/12/15/25 | 2/3/4/5/6 | * | 25 | 13 | • | • | |||
| 250 | 8/10/12/15/25 | 6-12 | * | 25 | 13 | • | ||||
| 300 | 8/10/12 | 6-12 | * | 30 | 15 | • | ||||
* A "*"-gal jelölt részek egyedi igények alapján, előzetes egyeztetés során kerülnek meghatározásra.
Szabványos rétegvastagságok (X): 2mm / 3mm / 4mm / 5mm / 6mm / 10mm / 12mm / 40mm / 50mm.
Szabványos furatméretek (H): 25mm / 40mm.
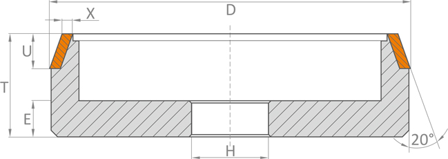
6A2-DVU alak-
Hengeres fazék alakú szuperabrazív korong
DxXxUxH

| Méretek | Kötés típusa | ||||||||
| D | X | U | H | T | Bakelit | Kerámia | Fém | Hibrid | Galván |
| 75 | 3 | 3 | 25 | 10 | • | ||||
| 100 | 3 | 1,8 | 25 | 9 | • | ||||
| 100 | 3 | 3/3,8 | 25 | 10 | • | ||||
| 100 | 4,5 | 4 | 25 | 10 | • | ||||
| 125 | 3 | 1,8 | 25 | 12 | • | ||||
| 125 | 3 | 3,8 | 25 | 14 | • | ||||
| 150 | 3 | 1,8 | 25 | 12 | • | ||||
| 150 | 3 | 3,8 | 25 | 14 | • | ||||
Szabványos szélességek (U): 1,8mm / 3mm / 3,8mm / 4mm.
Szabványos rétegvastagságok (X): 3mm / 4,5mm.
6A2G alak-
Hengeres fazék alakú szuperabrazív korong
DxXxUxH

| Méretek | Kötés típusa | |||||||||
| D | X | U | H | T | E | Bakelit | Kerámia | Fém | Hibrid | Galván |
| 200 | 6 | 2 | 50 | 28 | 14 | • | ||||
6A2-TR alak-
Hengeres fazék alakú szuperabrazív korong
DxWxUxH

| Méretek | Kötés típusa | |||||||
| D | W | U | H | Bakelit | Kerámia | Fém | Hibrid | Galván |
| 100 | 5,5 | 6 | * | • | ||||
| 125 | 6,5 | 6 | * | • | ||||
| 150 | 6 | 8 | * | • | ||||
| 200 | 6 | 10 | * | • | ||||
* A "*"-gal jelölt részek egyedi igények alapján, előzetes egyeztetés során kerülnek meghatározásra.
Szabványos szélességek (U): 6mm / 8mm / 10mm.
6A9 alak-
Hengeres fazék alakú szuperabrazív korong
DxXxUxH

| Méretek | Kötés típusa | |||||||||
| D | X | U | H | T | E | Bakelit | Kerámia | Fém | Hibrid | Galván |
| 50 | 2/3 | 6/10 | * | 20 | 8 | • | • | |||
| 75 | 2/3/4 | 6/10 | * | 25 | 10 | • | • | |||
| 100 | 2/3/4 | 6/10 | * | 30 | 10 | • | • | |||
| 125 | 2/3/4 | 6/10 | * | 30 | 10 | • | • | |||
| 150 | 2/3/4 | 6/10 | * | 35 | 10 | • | • | |||
| 175 | 3/4/5 | 6/10 | * | 35 | 10 | • | • | |||
| 200 | 3/4/5 | 6/10 | * | 40 | 13 | • | • | |||
| 220 | 3/4/5 | 6/10 | * | 40 | 13 | • | • | |||
| 250 | 3/4/5 | 6/10 | * | 40 | 13 | • | • | |||
* A "*"-gal jelölt részek egyedi igények alapján, előzetes egyeztetés során kerülnek meghatározásra.
Szabványos szélességek (U): 6mm / 10mm.
Szabványos rétegvastagságok (X): 2mm / 3mm / 4mm / 5mm.
6C2 alak-
Hengeres fazék alakú szuperabrazív korong
DxWxXxUxH

| Méretek | Kötés típusa | ||||||||||
| D | W | X | U | H | T | E | Bakelit | Kerámia | Fém | Hibrid | Galván |
| 100 | 6/10 | 3 | 5/7 | * | 22 | 10 | • | • | |||
| 125 | 6/10 | 3 | 5/7 | * | 22 | 10 | • | • | |||
| 150 | 6/10 | 3 | 5/7 | * | 22 | 10 | • | • | |||
* A "*"-gal jelölt részek egyedi igények alapján, előzetes egyeztetés során kerülnek meghatározásra.
Szabványos szélességek (U): 5mm / 7mm.
6V9 alak-
Hengeres fazék alakú szuperabrazív korong
DxXxUxH

| Méretek | Kötés típusa | |||||||||
| D | X | U | H | T | E | Bakelit | Kerámia | Fém | Hibrid | Galván |
| 75 | 2/3 | 6/10 | * | 25 | 8 | • | ||||
| 100 | 2/3 | 6/10 | * | 30 | 10 | • | ||||
| 125 | 2/3 | 6/10 | * | 35 | 10 | • | ||||
| 125 | 2/3 | 6/10 | * | 35 | 10 | • | ||||
* A "*"-gal jelölt részek egyedi igények alapján, előzetes egyeztetés során kerülnek meghatározásra.
Szabványos szélességek (U): 6mm / 10mm.
Szabványos rétegvastagságok (X): 2mm / 3mm.
A vágósebesség a szerszámok egyéb tulajdonságainak figyelembevételével 20m/s és 80m/s között lehetséges.
A fenti táblázatban szereplő értékek a gyártó partnereink ajánlott és jellemző méretei, egyedi igények esetén azoktól való eltérésre van lehetőség.
Az egyes anyagminőségek hatékony megmunkálásához kérje technológiai tanácsadóink vagy műszaki értékesítőink ajánlatát.
